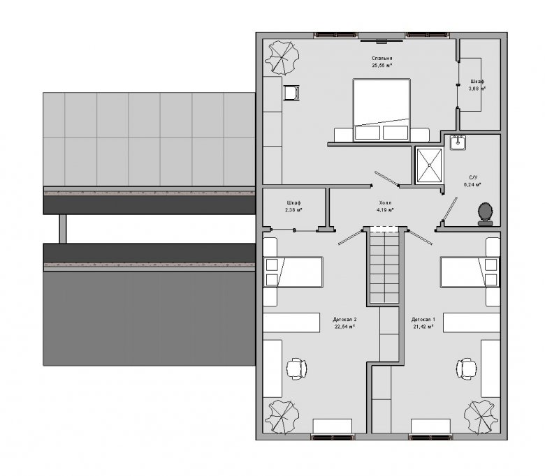
Началось все с проекта для моего знакомого, сам он дизайнер и обратился ко мне с вопросом проектирования дома, говорит "сам себе не могу, мучений будет куча". В общем суть да дело, сделали мы ему эскизный проект, весьма колоритного домика.
Прошло буквально пару месяцев и тут нам звонит человек, с просьбой сделать ему точно такой же, только побольше, я то грешным делом думал, что любителей такой отделки найдется немного, а подиж ты.))
Сделали мы ему проект и этой весной благополучно начали стройку, недалеко от Казани, в небольшой деревеньке, местные еще не знают чем мы обшивать будем, так что пока в деревне спокойная и мирная атмосфера.))
А еще там перед домом стоит ель и на ней живет филин, пока он бедняга терпит все эти перемены, боюсь не вытерпит и улетит.
В общем это не что иное как обычный каркасник, технологии о которых все спорят, смешанные, что то от канадцев, что то от финов, так что споры о том что лучше думаю будут не совсем корректны, хотя милости просим флудите ради бога.)
Начиналось как всегда с фундамента, у нас под домом УШП (утепленная шведская плита).
Думаю пара фоток не помешает.
Дальше залили все это безобразие и погнали собирать каркас, с помощниками!
Обшивали БЕЛТЕРМО, пленки ТАЙВЕК, утеплитель Роквул
Сейчас уже установили окна, рад очень, что окна сделали четко по проекту, боялся в этом плане самодеятельности заказчика и прораба.
Вот сидим ждем фасадную отделку, будет фиброцементный сайдинг, цвет 7016, у нас в городе с этими делами напряг, приходится ждать под заказ.
Теперь осталось узнать реакицю деревенских на черные дома и сделать крутые интерьеры под этот дом.





