Новогодний декоративный электронный камин.
Наступило после новогоднее «затишье»… Есть время «отчитаться» о проделанной «творческой» работе в 2022 г. А среди сделанного было изготовление новогоднего «электронного» камина. С чего все началось…
В далеком 2018 году (еще в до ковидные времена), незадолго до новогодних праздников, натолкнулся в интернете на видеоролик огня дровяного камина. Ролик понравился, и я загорелся изготовить камин для новогоднего праздника. Это было сделано, буквально за несколько часов из картонных коробок и бумажных обоев под кирпич. Что получилось можно увидеть в коротеньком ролике.
Этот камин радовал мою семью и наших гостей последующие новогодние праздники, межсезонье пережидая на чердаке гаража.
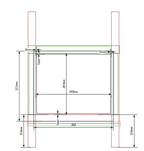
В преддверии 2022 года возникла идея сделать более качественный камин, похожий на настоящий, не только компьютерным пламенем, но и остальными характеристиками. Как и в предыдущем случае, в качестве «источника огня» был выбран LCD монитор 17 дюймов, хранящийся в кладовке, после замены у компьютера на его широкоформатного собрата. На основании внешних размеров монитора и размера экрана был разработан чертеж несущей рамы (внутренней рамы) для крепления монитора. При этом, чтобы не терять видимую часть экрана (не заслонять за счет толщины материалов обшивки и декора) размеры выбирались с учетом этого требования.
На чертеже размер «проема» для экрана на 10 мм больше в ширину и на 10 мм больше в высоту.
В качестве несущих элементов крепления монитора выбраны бруски сечением 40х20 мм, а для остальных элементов каркаса бруски использовались сечением 20х20 мм.
Из данных брусков был собран каркас будущего камина.
Было предусмотрено место для ноутбука и акустических систем.
Для установки камина у стены заранее были сделаны выборки (скосы) для плинтусов
После изготовления реечного каркаса, обшил его картоном. Картон крепил при помощи степплера.
После обшивки картоном, для скрытия неровностей и огрехов оклеил светлой плотной бумагой.
В качестве кирпичей использовал тонкий пенопласт (экструдированные потолочные плиты), которые резал на полосы, полосы на кирпичики, которые приклеивал полимерным клеем AXTON, для данной плитки (все покупал в леруа).
После оклейки примерил верхнюю полку (для подарков) из ламинированного ДСП белого цвета.
Стыки между «кирпичами» промазал акриловой шпатлевкой. После высыхания швов все покрасил белой акриловой краской.
В завершении для контрастности (придания помпезности)выделил швы краской под золото. 
Затем закрепил верхнюю полку и приклеил декоративный «потолочный» карниз на стыке между полкой и «кладкой»
С помощью губки нанес на карниз позолоту, закрепил и установил монитор. После подключения монитора к ноутбуку запустил ролик и камин начал «греть», а дрова трещать, через акустические системы.
Для удобства перемещения камина по квартире (вес с монитором, колонками и ноутбуком более 10 кг.) установил полноповоротные мебельные колесики.
Становил камин на предполагаемое место для новогоднего торжества. Украсил гирляндами, игрушками и мишурой.








